Projects
About
Cad
Press
Contact
Apartments
Houses
Public Space
Menu
Menu
Projects
About
Cad
Press
Contact
phone
+1 571-640-0706
e-mail
tsareva1865@gmail.com
socail
Location
North Bethesda, MD, USA
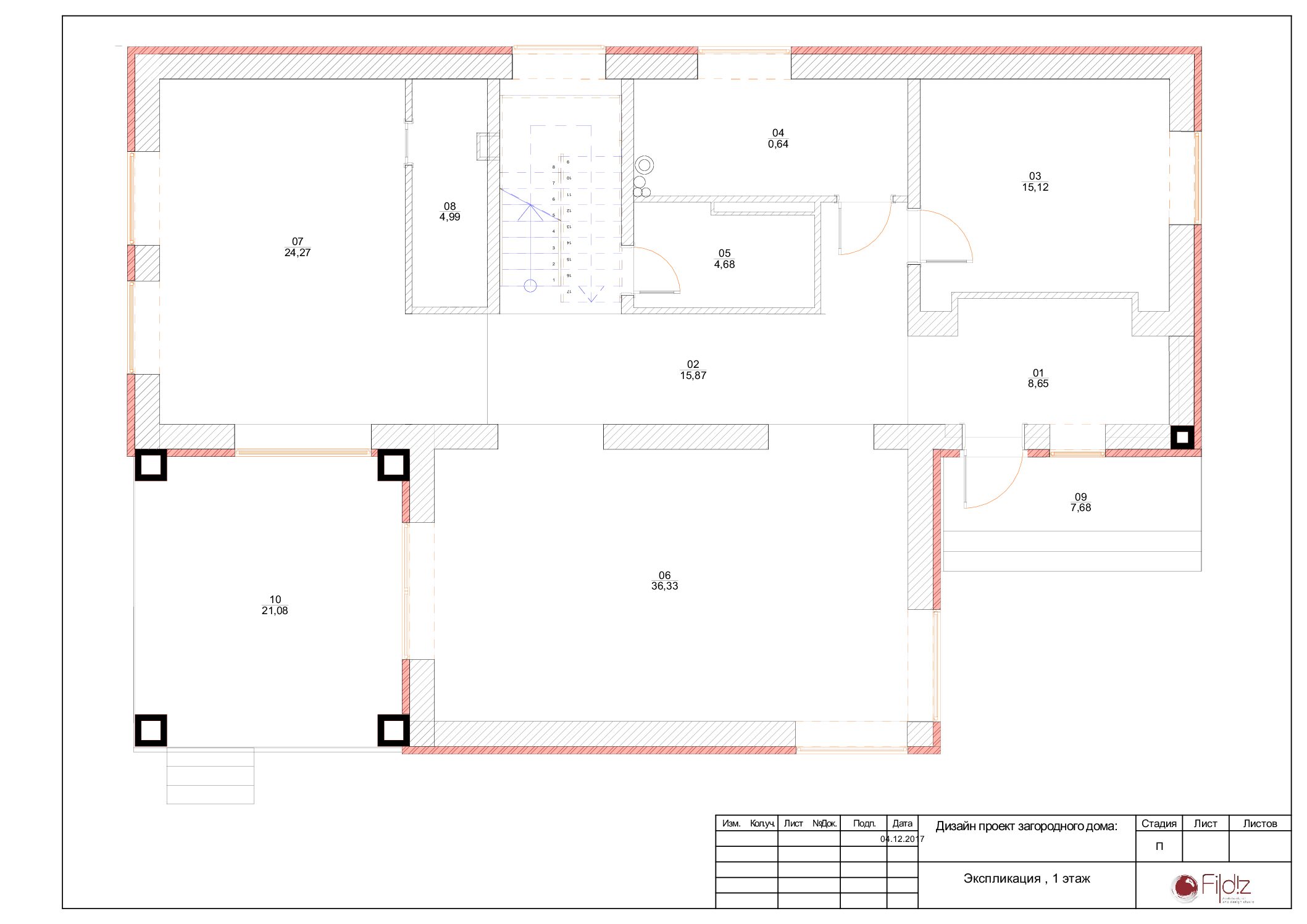
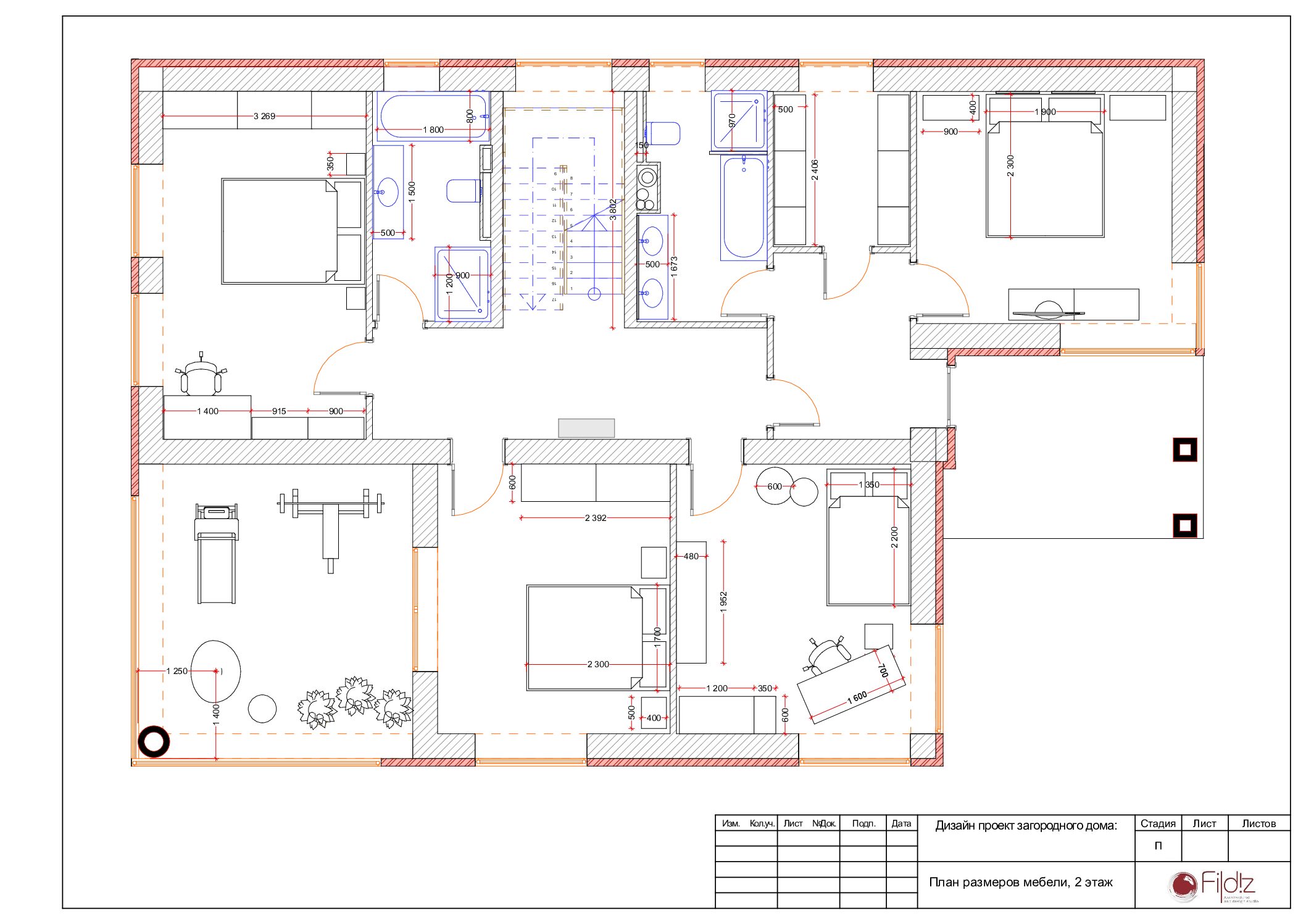
Private Residence